基础参数
·价格说明:133万元―160万元
·物业类别:住宅
·所在城市:休斯敦
·剩余房源: 10套
·房型:期房
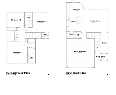
·主力户型: 三居、四居
·面积: 175平方米―250平方米
·竣工时间:首付后一年半左右
·装修状况:豪华精装
·产权说明:永久产权
·PDF: 暂无
抖音二维码
扫一扫关注我们